Skip to Content
AD Concepts
Portfolio
About Me
Open Icon
Close Icon
Portfolio
About Me
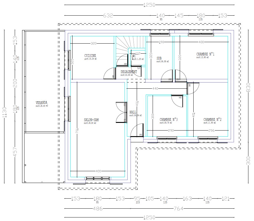
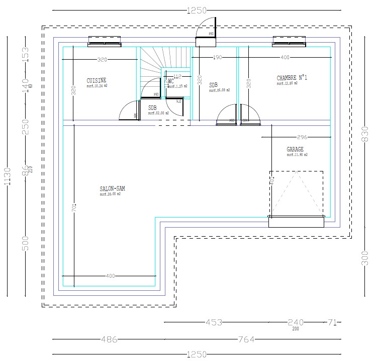
RĂ©alisation des plans de construction d’une maison individuelle
M