Skip to Content
AD Concepts
Portfolio
About Me
Open Icon
Close Icon
Portfolio
About Me
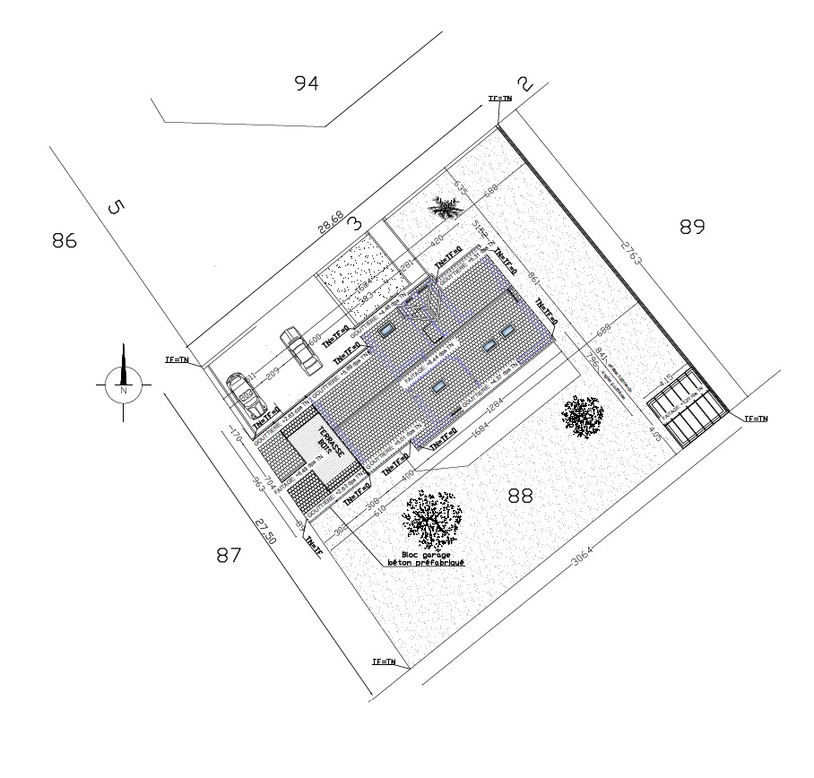
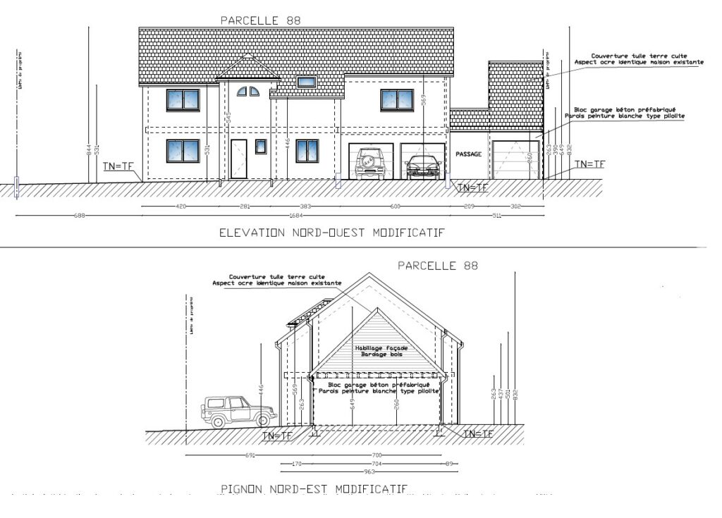
Extension garage terrasse toiture
M