Skip to Content
AD Concepts
Portfolio
About Me
Open Icon
Close Icon
Portfolio
About Me
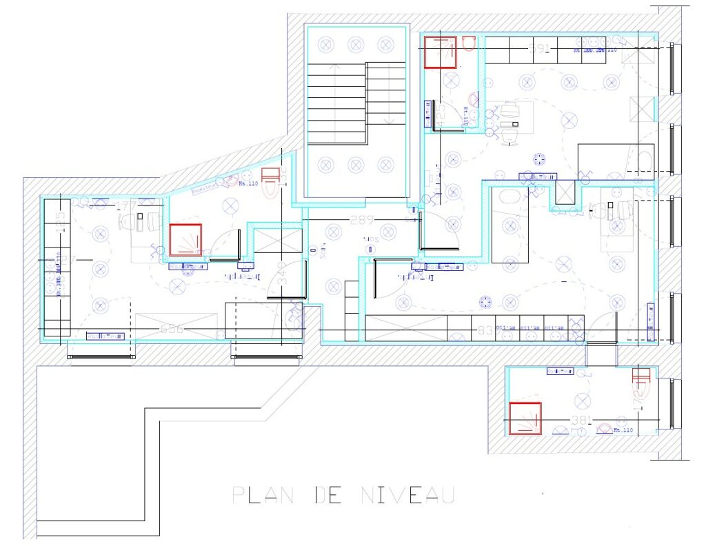
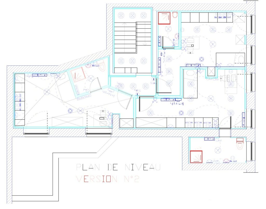
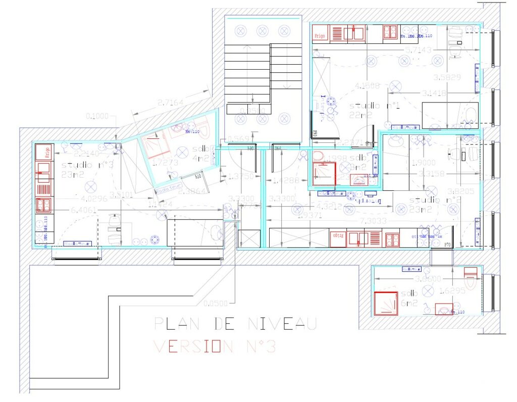
Plans appartement immeuble Thionville
M